Сборка шкафа 2026 статья

Опубликовано Венера Касумова - чт, 03/30/2023 - 23:52

Правильная подготовка при сборке шкафа существенно экономит время и упрощает работу. Если все аккуратно сложить и брать поэтапно, то можно избежать путаницы во время подгонки деталей. Следующим важным моментом идет проверка элементов, которые вам привезли или доставили -  они должны быть без дефектов, царапин и надломов.

Желательно детали не вытаскивать сразу из упаковки, иначе можно оказаться как в ситуации с лего или мозаикой: придется долго гадать куда и зачем нужна та или иная маленькая деталь, которая вроде бы казалась лишней, но зачем-то оказалась в вашей коробке. Самым лучшим вариантом будет пронумеровать все детали, которые будут идти в процессе работы. Так вы не потеряетесь и не запутаетесь. Некоторые производители устанавливают специальные стикеры на детали, которые должны состыковаться друг с другом.

Важность правильной установки шкафа

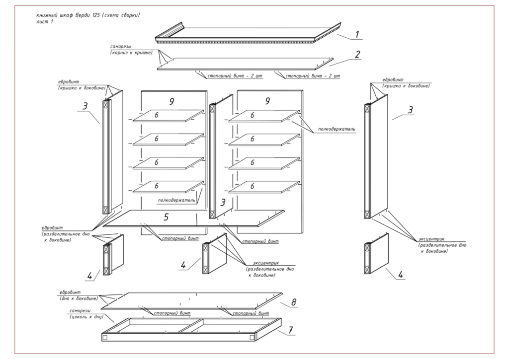
фото зображення 1

Освободив пространство для работы с будущей мебелью, нужно накрыть пол картоном, пленкой или какой-нибудь тканью, которая будет служить защитой (от царапин, пыли, опилок и прочего мусора)  в дальнейшей работе. Если у вас планируется встраиваемая мебель, то следует расчистить место у той части стены, где будет находиться шкаф.Сборка шкафа

После того, как вы приступите к сборке, следует установить последовательность действий:

  • Проверить схему или инструкцию сборки. Если таковая в наличии, то положить на видное место и строго следовать ее указаниям. В противном случае можно получить кучу досок, собранных в одну странную сюрреалистическую картину. Если вы последователь Сальвадора Дали, то это прекрасно, но у нас с вами другая цель, верно? Самым простым будет вариант, как собрать 2 дверный шкаф. Особенно если вы новичок и решили сделать все в первый раз.
  • Посмотреть, есть ли у будущего шкафа ножки. Если есть - прикрепить сначала их к днищу. Это легко сделать шуруповертом. Если же их нет, а есть боковые панели и цоколи (особенно это важно для шкафов с распашными дверцами, иначе  есть риск постоянно отбивать пальцы на ногах), то следует начать с них. Также цоколи очень важны при наличии плинтусов, так как вам не потребуется спиливать часть боковых стенок, чтобы придвинуть шкаф вплотную к стене.
  • Собрать каркас шкафа. Если мебель корпусная, то тут намного проще - нужно воспользоваться шуруповертом и крепить  все в уже подготовленных отверстиях. Если же ничего нет, то следует вооружиться карандашом и рулеткой, чтобы все было ровно. В основном шкафы собирают в горизонтальном виде, так меньше шансов, что у вас будет перекос в какую-либо сторону. Если же у вас вопрос, как собирают встраиваемый шкаф, то работа будет происходить в той нише или месте, где будет стоять будущий шкаф.
  • Подготовить и прикрепить заднюю часть шкафа. Это очень важно, так как именно благодаря этой части вся ваша конструкция будет выглядеть целостной и ровно. Все должно быть идеально ровно (однако допускается погрешность в 5мм на 1м). Если задняя часть прикреплена правильно, то уйдут прогибы остальных деталей и будет выровнен каркас. Следить нужно за диагональю, так как именно она и дает крен. Обычно, для установки задней части требуются лишь молоток и шурупы. Во время вкрутки шурупа не следует прилагать много усилий, чтобы он не провернулся в отверстии. Если же это все-таки произошло, постарайтесь найти уплотнитель, чтобы заполнить получившееся отверстие. Профессионалы советуют прикручивать заднюю часть на саморезы, а не прибивать гвоздями.
  • Собрать полки. Если вы размышляете над тем, как собрать шкаф купе, то не бойтесь, это не так сложно, как может показаться. Следует работать по простому алгоритму: снизу вверх. Собираться должны нижние детали и потом постепенно наслаиваться другие, расположенные наверху. То же касается днища и прочих элементов.
  • Собрать дверцы и крышку. Это уже финальный этап. Нужно быть внимательным, ведь собрать шкаф зеркалами не так-то просто, как может показаться на первый взгляд. Нужно установить детали так, чтобы они были плотно закреплены. Тут может потребоваться не только шуруповерт и крепежные элементы, но и хороший клей. Нужно установить дверь на задние прорези и вставить верхнюю часть в заднюю верхнюю пройму, после чего завести колесики на нижнюю заднюю пройму. Если конструкция предусматривает наличие более двух дверей, необходимо таким же образом установить на задние направляющие вторую дверь. Наружная дверь устанавливается последней.

схема установки шкафов 11

Последние элементы сборки дверей характерны для тех, кто хочет узнать, как собирать шкаф купе 3 дверный. Вы сами решаете, какой шкаф установить в своем доме. Однако есть момент, если у вас шкаф будет длиннее двух метров, то рекомендуется выбрать 3-х дверный шкаф, так как длинные двери непрактичны. Такой тип конструкции идеален для квартир, где можно оборудовать комнату под гардеробную. Вместительные полки с большой глубиной позволят держать вещи в порядке и даже если вы будете их гладить, ничего не будет мяться или заламываться при закрытии дверей. Поэтому можно посмотреть инструкцию “как собрать  3 х дверный шкаф” и подготовить отличную гардеробную комнату, в которой будут храниться вещи всей семьи. Нижние полки подойдут под одежду ребенка, а верхние - под рубашки и зимнюю одежду. Однако не все могут позволить себе установить большой вместительный шкаф. Сейчас планировка квартир зачастую носит нестандартный характер. И тогда на помощь в экономии пространства приходит  угловой шкаф.